Trim Clips Fasteners
Trim Clip Fasteners
Trim Clip Fasteners were recently introduced and these unique fasteners have real potential as a general purpose fastener.
Designed for use over rectangular studs or integrally molded blades, ribs, etc., on trim strips, access plates, or any light application where removing the fastener is a factor.
How to apply Trim Clip Fasteners
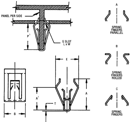
Trim Clip fasteners are simply pressed over the stud, blade, rib, etc., with barbed, u-shaped retaining legs fully seated.
Then, as part of the strip or plate assembly, the trim clip fastener is pressed into assembled position on the panel, frame, door, appliance, or whatever.
Rectangular mounting holes or gaps between panel or frame members serve as anchor points for the fastener. The self-equalizing retaining legs are formed into a dart-type configuration for easy mounting. They assure a snug, rattle free installation, yet will yield to deliberate removal force applied to the trim or plate.
Request a sample of trim clip fasteners today!
The dimensions of the trim clip parts listed are envelope dimensions only. For complete design information, please contact us or send drawing.
Metric Parts Listed In Italic
- SS - Stainless Steel
- BE - Beryllium Copper
- P - Phosphor Bronze
|
|
Part Look up |
|
|

